睿婕輕鋼別墅藍色調版本
此套別墅占地面積119平方,兩層總面積232平方
屬于中型別墅‘,顏色搭配非常漂亮,整體協調性不失大氣
適合喜歡藍色的業務

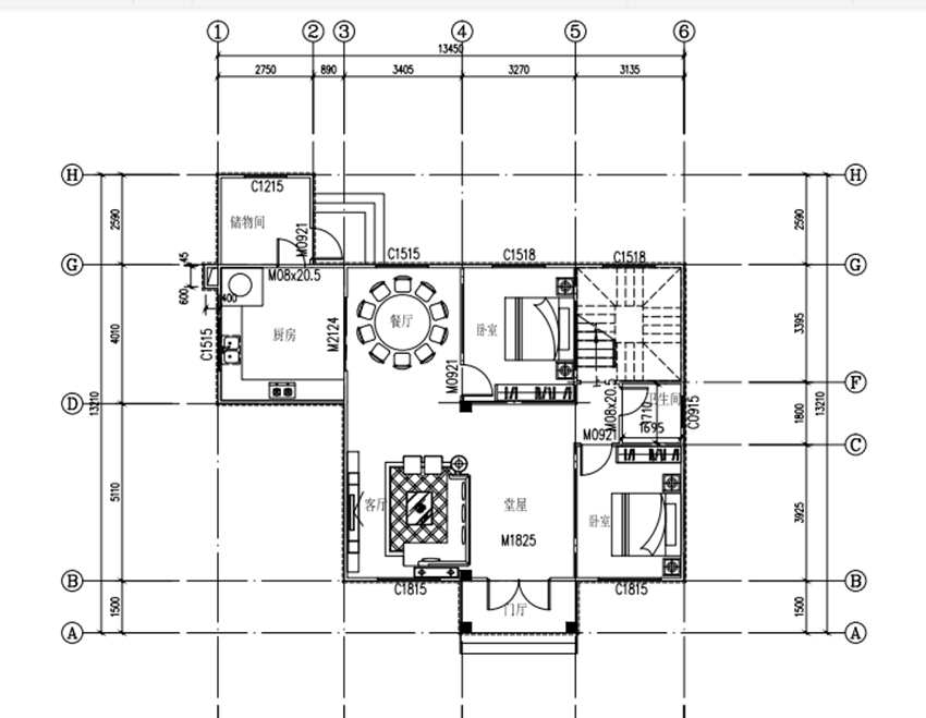
第一層平面圖

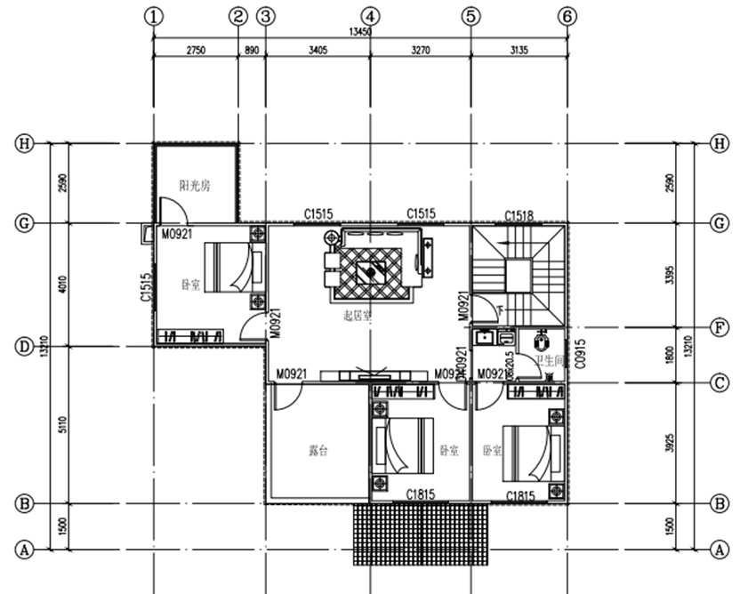
第二層平面圖

此套別墅占地面積119平方,兩層總面積232平方
屬于中型別墅‘,顏色搭配非常漂亮,整體協調性不失大氣
適合喜歡藍色的業務

第一層平面圖

第二層平面圖




Copyright ? 2023 江西漢良房屋科技有限公司,工信部備案號:贛ICP備2023004803號-2